Voor bezoekers van
Portaal nog
niet zichtbaar
| VORM | APPARATEN | STIJL | KLEUR |
|---|---|---|---|
| L-opstelling | JA | Landhuis | bruin |
| Merk | keller |
|---|---|
| MODEL | Wildenborch gebeitst gefineerd front met groeven om de 15 cm |
| PRIJS |
|
| VORM | L-opstelling |
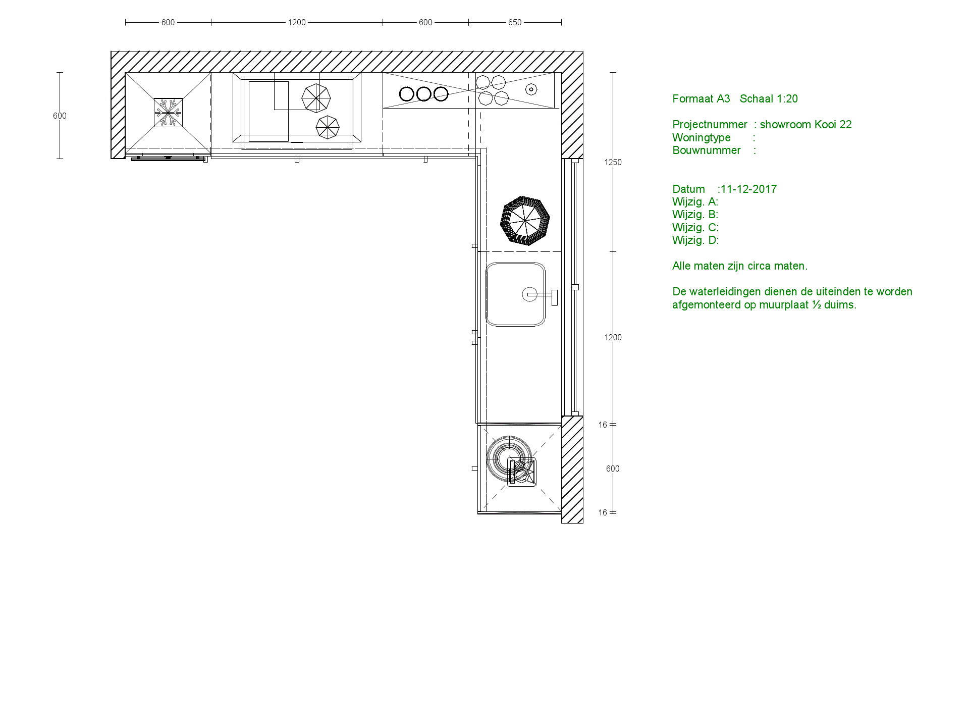
Keuken van het merk Keller
Model: Wildenborg
Fronten: Donkergrijs beits
Werkblad: DecorTop- kleur Rocket (60cm diep)
Apparatuur:
• Atag vaatwasser (op hoogte geplaatst)
• Atag combimagnetron 45 cm hoog
• Atag koelkast met vriesvak 102 cm hoog
• Pelgrim inductiekookplaat 77cm breed
• Pelgr...
Keuken van het merk Keller
Model: Wildenborg
Fronten: Donkergrijs beits
Werkblad: DecorTop- kleur Rocket (60cm diep)
Apparatuur:
• Atag vaatwasser (op hoogte geplaatst)
• Atag combimagnetron 45 cm hoog
• Atag koelkast met vriesvak 102 cm hoog
• Pelgrim inductiekookplaat 77cm breed
• Pelgrim afzuigkap 90 cm breed
• Mengkraan kleur Gun Metal
• Spoelbak kleur Gun Metal
Wegens het continue willen blijven vernieuwen van de keukens in onze showroom, is het tijd dat deze mooie keuken weer plaats maakt voor een ander.
In overleg zijn er mogelijkheden tot eventuele demontage, transport en montage van de showroomkeuken.
Interesse? Bel naar onze showroom om een afspraak te maken om de showroomkeuken te komen bekijken indien gewenst: 0172- 422 100 of stuur een mailtje naar alphen@intermat.nl
Schematische weergave van de plattegrond
| 305 cm | 245 cm | ||
| Werkblad 94 cm | |||
| VOORKANT KLEUR | Donkergrijs beits |
|---|---|
| Voordecor | Hout fineer |
| Werkblad | DecorTop |
| Kookplaat | |
|---|---|
| Merk | Pelgrim |
| MODEL | |
| EEK* |
| Afzuigkap | |
|---|---|
| Merk | Pelgrim |
| MODEL | |
| EEK* |
|
| Oven | |
|---|---|
| Merk | Atag |
| MODEL | |
| EEK* |
|
| Koelkast | |
|---|---|
| Merk | Atag |
| MODEL | |
| EEK* |
|
| Vaatwasser | |
|---|---|
| Merk | Atag |
| MODEL | |
| EEK* |
|
| VORM | APPARATEN | STIJL | KLEUR |
|---|---|---|---|
| L-opstelling | JA | Landhuis | bruin |
Intermat Alphen a/d Rhijn B.V.
Rue de la Croix Poche
2404 HJ
Showroomkeuken aanbiedingen in verschillende keukenstijlen. Van landelijke tot moderne keukenstijlen met korting tot wel 70% op een showroomkeuken. Showroomkeuken.com biedt aanbiedingen aan van alle bekende keukenmerken. Van Ballerina, Berkermann, ALNO, Bau-for-mat, Siematic, REDDY, Poggenpohl tot Nolte keukens.
Op een showroomkeuken ontvang je vaak 30% tot wel 70% korting in vergelijking met een compleet nieuwe keuken, doordat de keuken al in een showroom heeft gestaan. De keuken is dus vaak ook nog compleet nieuw, maar dus alleen gebruikt in een showroom van een keukenbedrijf. Daarnaast zijn showroomkeukens snel leverbaar of kun je een showroomkeuken zelfs direct meenemen, doordat het model al volledig aanwezig is in de showroom. De showroommodellen worden vaak ook compleet geleverd met oven, kookplaat, vaatwasser, cooker of koelkast.
Showroomkeuken.com brengt klanten en keukenspecialisten samen. Op ons portaal treft u een groot assortiment showroomkeukens aan van keukenspecialisten uit heel Nederland. U vindt er zeker een keuken bij u in de buurt. Wanneer u bij ons een showroomkeuken koopt, profiteert u meteen dubbel. Enerzijds bieden wij u online een enorm assortiment showroomkeukens, anderzijds is het mogelijk deze ter plaatse te bekijken. U kunt er dus vrijwel zeker van zijn, dat u een keuken vindt die exact op u en uw eisen is toegesneden. Bovendien vindt betaling niet plaats via ons portaal, maar rechtstreeks via de keukenspecialist. Er is altijd een vast aanspreekpunt voor u beschikbaar.
De keukenspecialisten die hun keukens op ons portaal presenteren, zijn ervaren keukenexperts. Aanpassingen aan de door u gekozen showroomkeuken of extra wensen zijn hierdoor zonder problemen mogelijk. Bovendien worden veel praktische services zoals levering en montage of een garantie aangeboden.
